Direct contact? Bel: 020 - 760 58 40

HomeProjectenTransformatie / herbestemming van kantoor naar...

Transformatie / herbestemming van kantoor naar wonen

Onze opdrachtgever had last van langdurige leegstand van zijn kantoor. Alleen op de begane grond was een ruimte verhuurd met een langlopend contract.

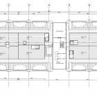
Na overleg met de gemeente is er besloten om plannen te maken voor de transformatie naar wonen. Op de begane grond is per woning een berging gerealiseerd en daarnaast één grote gezamenlijke fietsenberging. Het pand was voorzien van één centraal trappenhuis met lift welke in de plannen is aangehouden als centraal stijgpunt. Op de plek van het oude vluchtrappenhuis is een nieuw trappenhuis bedacht waarmee ook vier woningen zijn ontsloten. Zo is er een plan ontstaan voor 16 woningen, varierend van 2-kamerwoningen tot een aantal penthouses. De kleinere woningen hebben een frans balkon als buitenruimte gekregen en de grotere woningen hebben een dakterras van minimaal 25 m².

Op basis van artikel 4 uit het besluit omgevingsrecht / BOR uit november 2014 was het mogelijk om met toepassing van artikel 2.12, lid 1 en lid 9 van de Wet algemene bepalingen omgevingsrecht / Wabo de transformatie aan te merken als kruimelgeval. Dit betekende een doorlooptijd van 8 weken!! Het heeft wat moeite gekost om de gemeente hier ook van te overtuigen maar met een goede ruimtelijk onderbouwing en uitgewerkte tekeningen is het gelukt.

De eigenaar had in plaats van een leeg kantoor opeens een bouwvergunnig voor 16 woningen. Inmiddels is het plan doorverkocht aan een ontwikkelende aannemer.